Projekt zaplecza szatniowo-sanitarnego LKS Lubań Maniowy
W odpowiedzi na nieprawdziwe informacje rozpowszechniane przez niektórych mieszkańców, odnośnie przedstawionej koncepcji do projektu budowy zaplecza sanitarno-szatniowego na boisku LKS Lubań Maniowy, uprzejmie informujemy, że szczegóły dotyczące zawarcia umowy z firmą ArtiArch Pracownia Projektowa Sylwia Madejska-Mosor z Żabna zostały podane do wiadomości w ubiegłym roku.
Zapytanie ofertowe dotyczące wyłonienia wykonawcy projektu opublikowane zostało na platformie zakupowej w dniu 27 lipca 2023 r.
Przedmiotem umowy z firmą ArtiArch Pracownia Projektowa Sylwia Madejska-Mosor jest „Wykonanie projektu technicznego budowy zaplecza sanitarno-szatniowego na boisku LKS Lubań Maniowy wraz z uzyskaniem niezbędnych pozwoleń”.
W ramach koncepcji projektu technicznego, Projektant ma usytuować przedmiotowy budynek na działce uwzględniając planowaną inwestycję dotyczącą budowy lodowiska (projekt lodowiska nie wchodzi w zakres zamówienia) oraz dostosować jego lokalizację do imprez masowych, miejsc parkingowych w sąsiedztwie obiektu, z uwzględnieniem przebudowy zjazdów oraz zagospodarowania terenów przyległych, w tym dojść i dojazdów do obsługi obiektu.
Po wyłonieniu wykonawcy projektu, odbyło się spotkanie z przedstawicielami Zarządu Klubu LKS Lubań Maniowy, na którym uzgodniono szczegóły dotyczące m.in. wyglądu projektowanego budynku.
Obecnie projektant stara się o uzyskanie niezbędnych pozwoleń. Termin złożenia projektu wraz ze wszystkimi wymaganymi pozwoleniami to czerwiec br.
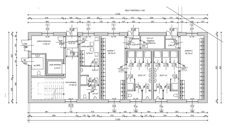
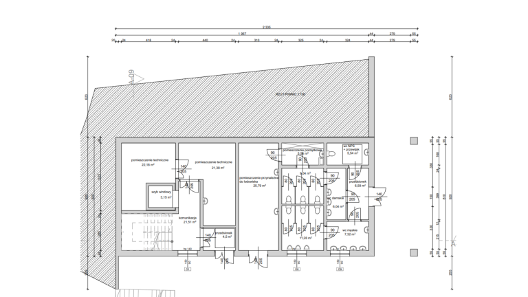
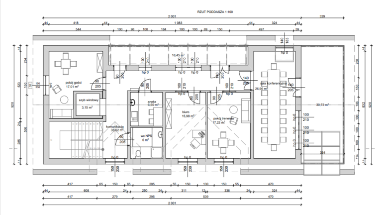
W załączeniu przedstawiamy przedkładane w trakcie prac przekroje dotyczące projektowanego budynku.
Posiadanie dokumentacji projektowej wraz z niezbędnymi pozwoleniami jest jednym z warunków ubiegania się przez Gminę Czorsztyn o pozyskanie dofinansowania na realizację ww. zadania.
Jest więc nieprawdą, że Gmina na potrzeby wyborów zleciła wykonanie zaledwie koncepcji. Po raz kolejny autor wpisu wprowadza opinię publiczną w błąd.
















